Vergrößern im Alter: Vom Garten- zum Gästehaus mit Sauna
Sind die Kinder aus dem Haus, ist dieses oft zu groß. So denken viele und verkleinern sich. Die Bauherrin, Inhaberin eines Pflegedienstes, ist anderer Ansicht. So plant sie zusätzlich eine Wochenend-Oase für ihre Enkel, Freunde und sich selbst.
Eine Wohnbaracke am Stadtrand von Leipzig – ein schlichter Holzbau aus den 1930er Jahren – wurde in der Vergangenheit mehrfach erweitert und teilsaniert. Um den Bestandsschutz des Gebäudes nicht zu verlieren, war es unsere Aufgabe, ohne starke Veränderung der Außenkubatur und der Fenster, den Grundriss ganzheitlich neu zu ordnen und dabei die gewünschte Gästebeherbergung mit einer Sauna zu verknüpfen. Er war uns eine Herzensangelegenheit, die Wünsche der Bauherrin umzusetzen. Denn sie hatte das Projekt bereits gemeinsam mit ihrem zwischenzeitlich verstorbenen Mann geplant.
Der Übereck-Blick aus dem neu gestalteten Ruheraum der Sauna öffnet sich hin zum eigenen Blumengarten. Ein großes Oberlicht bringt Tageslicht in die fensterlosen Bereiche.
Gestaltprägende bauzeitliche Elemente werden bewusst mit modernen kombiniert. Holzschalung, technisches Porzellan sowie die Walzenmaltechnik treffen beispielsweise auf Großformatfliesen und bedrucktes Glas. Hiermit konnten wir die klare und individuelle Gestaltung jedes einzelnen Raumes erzielen.
-
Lageplan -
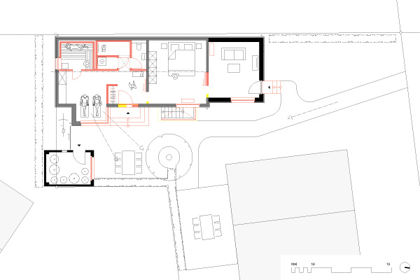
Grundriss Erdgeschoss -
Ruheraum – Holz schafft Behaglichkeit. -
Ausblick ins Grüne -
Wilder Verband -
Duschen unter Wasser -
Warmes Holz zitiert die historische Wandbekleidung. -
Altes Handwerk: Pfingstrosen im Walzdekor -
Bauzeitliche Elemente im modernen Kontext -
Keramik auf kleinstem Raum
