Klassisch. Modern: Einfamilienhaus in Telgte
Dies ist ein typisches Einfamilienhaus. Auf den ersten Blick. Doch auf den zweiten zeigt es sein kreatives Spiel mit Räumen und Flächen. Für die Eltern gibt es einen eigenen Bereich mit Ankleide, Sauna und Balkon zum anschließenden Abkühlen.
-
Westfassade -
Westfassade mit Doppelgarage -
Grau- und Rottöne bestimmen die Fassade -
Die Gaube belichtet den Treppenraum -
kompositorische Spannung an der Nordfassade -
Entwurfsskizze der Südfassade -
Lageplan -
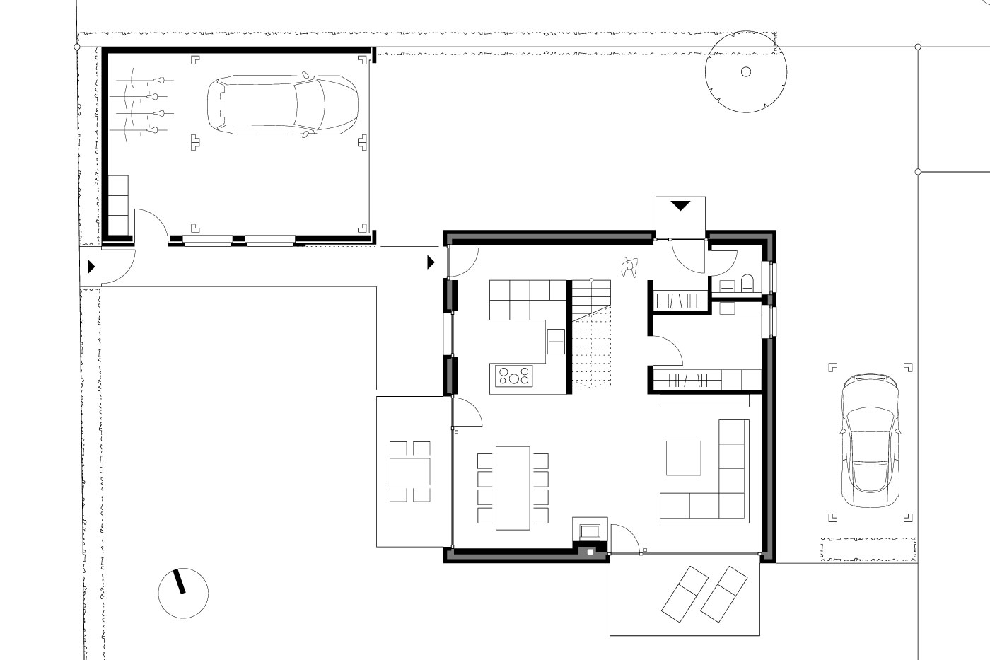
Grundriss Erdgeschoss -
Grundriss 1. Obergeschoss -
Grundriss Spitzboden -
Ansicht Nord -
Ansicht West -
Ansicht Süd -
Ansicht Ost -
Querschnitt
Projektangaben
Architekt LP1-5: Stefan Unnewehr, Telgte Bauherr: privat Tragwerksplanung: IPF ingenieurbau planungsbüro fockenbrock, Telgte Wärmeschutznachweis: Ingenieurbüro Früchte, Sendenhorst Visualisierung: Stefan Unnewehr, Telgte Laufzeit: 2015-2016
